Projekt Żurawinka bez garażu B (TST-247)
Dane ogólne:
CENA:4840 zł
pow. użytkowa: 85,9m²
pow. zabudowy: 125 m²
min. wym. działki: 15,8 x 23,4 m
kondygnacje: parterowy
poddasze: null
rodzaj zabudowy: wolnostojący
technologia: murowany
styl: nowoczesny
piwnica: nie
garaż: bez garażu
rodzaj dachu: dwuspadowy
pow. dachu: 151,8 m²
nachylenie dachu: 35°
wysokość domu: 6,3 m
kubatura: b/d
liczba pokoi: 4
liczba łazienek: 2
kominek: tak
Opis projektu:
Technologia wykonania:

  • Fundamenty: betonowe.

  • Ściany zewnętrzne: Porotherm 25cm + styropian 20cm Termo Organika.

  • Rodzaj stropu i konstrukcja dachu: wiązary prefabrykowane Mitek.

  • Elewacje: tynk strukturalny.

  • Pokrycie dachu: blacha.

Rzuty:
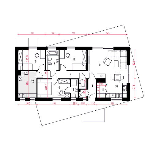
Rzut parteru
Żurawinka bez garażu B - Rzut parteru
Opis pomieszczeń:
1.Wiatrołap - 4.2 m²
2.WC - 1.4 m²
3.Hol - 7.3 m²
4.Pokój - 11.9 m²
5.Łazienka - 2.5 m²
6.Pokój - 10.7 m²
7.Łazienka - 5.0 m²
8.Pokój - 10.7 m²
9.Salon - 21.6 m²
10.Kuchnia - 8.1 m²
11.Spiżarnia - 2.5 m²
12.Pom. techniczne + pralnia - 9.4 m²
Elewacje:
Elewacja przednia
Elewacja tylna
Elewacja lewa
Elewacja prawa

Potrzebujesz porady...?
Skontaktuj się z nami - jesteśmy do Twojej dyspozycji.

tel: 52 384 49 90 email: projekty@tooba.pl
kom: 605 071 505 kom: 502 363 539 kom: 502 363 364