Projekt Parterowy wąski 2 (TSS-649)
Dane ogólne:
CENA:6490 zł
pow. użytkowa: 120,59m²
pow. zabudowy: 203,63 m²
min. wym. działki: 26,55 x 19,36 m
kondygnacje: parterowy
poddasze: null
rodzaj zabudowy: wolnostojący
technologia: murowany
styl: nowoczesna elewacja
piwnica: nie
garaż: jednostanowiskowy
rodzaj dachu: dwuspadowy
pow. dachu: 261,5 m²
nachylenie dachu: 25°
wysokość domu: 7,08 m
kubatura: 887 m³
liczba pokoi: 4
liczba łazienek: 1
kominek: tak
Opis projektu:

Projekt domu Parterowy wąski to projekt domu jednorodzinnego parterowego ze strychem / poddaszem do zagospodarowania, nawiązującego do popularnych projektów z serii ”Parterowy”. Tym razem jest to dom przewidziany na węższą działkę o szerokości poniżej dwudzistu metrów – prezentujemy dwie wersje architektury: tradycyjną – Parterowy wąski 1 i nowoczesną – Parterowy wąski 2. Bryła budynku jest prostokątna, przykryta dwuspadowym dachem, z dobudowanym gankiem wejściowym, oraz wysuniętą sypialnią przykrytą poprzecznym zadaszeniem. Elewację frontową ozdobiono wejściowym portykiem z przeszklonymi drzwiami wejściowymi zapraszającymi do wnętrza. Od strony ogrodowej mamy szerokie przeszklone drzwi z salonu na taras i podcień. Nowoczesna architektura domu, duże przeszklenia, elewacje podzielone pasami zróżnicowanych okładzin dają w efekcie atrakcyjną sylwetkę budynku. Wnętrze parteru podzielone zostało na część dzienną – z salonem, część gospodarczą – z garażem i kotłownią, oraz sypialnie. Do wnętrza wchodzimy wygodnym przedsionkiem, do holu połączonego z salonem z jadalnią i kuchnią ze spiżarką. Salon ma podniesiony aż do dachu sufit nad częścią z meblami wypoczynkowymi, kominkiem i ścianą TV – otwarcie w stropie, przy założeniu zagospodarowania poddasza jako użytkowego, może być antresolą nad salonem z barierką. Na lewo od wejścia mamy kotłownię i garaż. Przechodząc wgłąb domu, trafiamy do sypialni – rodziców z garderobami, dwóch dziecięcych i dużej łazienki. Nad parterem mamy do dyspozycji duży strych, który może być przestrzenią magazynową, albo można go wykorzystać jako dodatkowe poddasze użytkowe – jeśli zajdzie taka potrzeba. Projekt domu Parterowy wąski został zaprojektowany jako energooszczędny. Jego bardzo dobre izolacje, nowoczesne instalacje sprawią, że koszt eksploatacji budynku będzie niewielki. Projekt domu Parterowy wąski powinien przypaść do gustu osobom, które chcą postawić niewielki dom, z wszystkimi pomieszczeniami na parterze, w nowoczesnej atrakcyjnej architekturze, którzy dysponują dość wąską parcelą. Bryła budynku jest prosta – dom będzie łatwy do wybudowania. W wersji podstawowej projekt ma nad parterem strop żelbetowy monolityczny i tradycyjną więźbę dachową, ale projekt występuje też w drugiej wersji – bardziej ekonomicznej – z prefabrykowaną więźbą dachową i stropem z wiązarów kratownicowych. Zapraszamy!

Technologia wykonania:

  • Fundamenty: betonowe ławy i ściany fundamentowe z bloczków betonowych.

  • Ściany zewnętrzne: ściany murowane - pustaki porotherm 25 + styropian.

  • Strop: monolityczny betonowy, lub wariantowo więźba i strop z wiązarów kratownicowych (MG Domy).

  • Elewacje: tynk cienkowarstwowy.

  • Pokrycie dachu: dachówka.

Rzuty:
Rzut parteru
Parterowy wąski 2 - Rzut parteru
Opis pomieszczeń:
1.Sień - 4.77 m²
2.Hol - 14.68 m²
3.Salon + jadalnia - 32.6 m²
4.Kuchnia - 10.66 m²
5.Spiżarnia - 2.47 m²
6.WC - 2.92 m²
7.Sypialnia - 11.76 m²
8.Sypialnia - 11.76 m²
9.Łazienka - 7.91 m²
10.Sypialnia - 21.06 m²
11.Kotłownia - 6.14 m²
12.Garaż - 19.5 m²
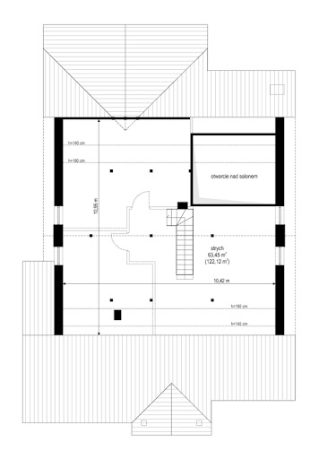
Rzut strychu
Parterowy wąski 2 - Rzut strychu
Elewacje:
Elewacja przednia
Elewacja tylna
Elewacja lewa
Elewacja prawa

Potrzebujesz porady...?
Skontaktuj się z nami - jesteśmy do Twojej dyspozycji.

tel: 52 384 49 90 email: projekty@tooba.pl
kom: 605 071 505 kom: 502 363 539 kom: 502 363 364