Projekt Ekotypowy 44 (TWY-378) - lustrzane odbicie
Dane ogólne:
CENA:4600 zł
pow. użytkowa: 155,1m²
pow. zabudowy: 137,25 m²
min. wym. działki: 18,82 x 22,64 m
kondygnacje: parterowy
poddasze: null
rodzaj zabudowy: wolnostojący
technologia: murowany
styl: nowoczesna elewacja
piwnica: nie
garaż: jednostanowiskowy
rodzaj dachu: dwuspadowy
pow. dachu: b/d
nachylenie dachu: 40°
wysokość domu: 8,63 m
kubatura: b/d
liczba pokoi: 6
liczba łazienek: 3
kominek: tak
Opis projektu:

Ekotypowy 44 to dom z poddaszem użytkowym i wbudowanym garażem. Dom o w miarę typowym rozkładzie rzutów parteru i poddasza. Dolna kondygnacja posiada wszelkie niezbędne udogodnienia – małą spiżarnię pod schodami, garaż z pomieszczeniem gospodarczym. Na poddaszu znalazła się dużych rozmiarów pralnia służąca dodatkowo jako pomieszczenie gospodarcze w tej części domu. Elementami wyróżniającymi projekt są zadaszenie strefy wejścia jako wycięcie dolnej części lukarny oraz mały tarasik kawowy przy sypialni rodziców na poddaszu. Przewidziano wiatę przy garażu jako dodatkowe miejsce postojowe, pod którą można dostać się bezpośrednio z garażu.

Technologia wykonania:

  • Ogrzewanie: kocioł gazowy / elektryczne/pompa ciepła.

  • Fundament: płyta fundamentowa 25cm + 15xps + 10cm eps lub ławy fundamentowe.

  • Ściany: beton komórkowy Termalica 24cm + eps 20cm.

  • Dach: drewniany + 40cm izolacji na stropie.

  • C.w.u.: kocioł gazowy / elektryczne / pompa ciepła.

  • Wentylacja: mechaniczna z reku.

Rzuty:
Rzut parteru
Ekotypowy 44 - Rzut parteru
Opis pomieszczeń:
1.Wiatrołap - 6.19 m²
2.Hol - 4.94 m²
3.Salon - 22.45 m²
4.Jadalnia - 9.8 m²
5.Kuchnia - 8.96 m²
6.Pokój - 9.31 m²
7.Łazienka - 2.88 m²
8.Pom. gospodarcze - 8.77 m²
9.Garaż - 28.34 m²
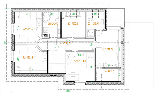
Rzut poddasza
Ekotypowy 44 - Rzut poddasza
Opis pomieszczeń:
1.Przedpokój - 11.47 m²
2.Sypialnia - 15.94 m²
3.Łazienka - 5.85 m²
4.Garderoba - 1.38 m²
5.Pralnia - 9.28 m²
.Łazienka - 6.6 m²
7.Pokój - 12.75 m²
8.Pokój - 13.15 m²
9.Pokój - 14.15 m²
Elewacje:
Elewacje

Potrzebujesz porady...?
Skontaktuj się z nami - jesteśmy do Twojej dyspozycji.

tel: 52 384 49 90 email: projekty@tooba.pl
kom: 605 071 505 kom: 502 363 539 kom: 502 363 364