Projekt DomStudio 02 (TFY-133) - lustrzane odbicie
Dane ogólne:
CENA:4399 zł
pow. użytkowa: 123,9m²
pow. zabudowy: 220,89 m²
min. wym. działki: 22,05 x 27,3 m
kondygnacje: parterowy
poddasze: null
rodzaj zabudowy: wolnostojący
technologia: murowany
styl: nowoczesna elewacja
piwnica: nie
garaż: dwustanowiskowy
rodzaj dachu: wielospadowy
pow. dachu: 351 m²
nachylenie dachu: 35°
wysokość domu: 7,97 m
kubatura: 988,14 m³
liczba pokoi: 4
liczba łazienek: 2
kominek: tak
Opis projektu:
Technologia wykonania:

  • Ściany: pustak ceramiczny 25 cm + izolacja 20 cm.

  • Schody: konstrukcja drewniana.

  • Strop: żelbetowy monolityczny.

  • Więźba: tradycyjna drewniana.

  • Pokrycie dachu: dachówka.

Rzuty:
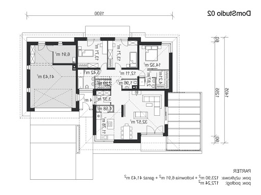
Rzut parteru
DomStudio 02 - Rzut parteru
Opis pomieszczeń:
1.Wiatrołap - 4.0 m²
2.Garderoba - 3.37 m²
3.Kuchnia - 11.78 m²
4.Spiżarnia - 1.58 m²
5.Salon - 32.57 m²
6.WC - 1.96 m²
7.Hol - 12.11 m²
8.Pokój 1 - 14.32 m²
9.Garderoba - 4.21 m²
10.Łazienka - 2.87 m²
11.Pokój 2 - 13.71 m²
12.Pokój 3 - 13.71 m²
13.Łazienka - 5.42 m²
14.Pom. gospodarcze - 2.29 m²
15.Garaż - 41.43 m²
16.Kotłownia - 6.91 m²
Elewacje:
Elewacja przednia
Elewacja tylna
Elewacja lewa
Elewacja prawa

Potrzebujesz porady...?
Skontaktuj się z nami - jesteśmy do Twojej dyspozycji.

tel: 52 384 49 90 email: projekty@tooba.pl
kom: 605 071 505 kom: 502 363 539 kom: 502 363 364