Projekt Tamara 4 (TUZ-445)
Dane ogólne:
CENA:4999 zł
pow. użytkowa: 132,24m²
pow. zabudowy: 193,7 m²
min. wym. działki: 19,59 x 26,84 m
kondygnacje: parterowy
poddasze: null
rodzaj zabudowy: wolnostojący
technologia: murowany
styl: nowoczesna elewacja
piwnica: nie
garaż: jednostanowiskowy
rodzaj dachu: dwuspadowy
pow. dachu: 310,44 m²
nachylenie dachu: 35°
wysokość domu: 7,69 m
kubatura: 1100,1 m³
liczba pokoi: 5
liczba łazienek: 1
kominek: tak
Opis projektu:

Kolejna wersja popularnego projektu Tamara. Budynek ma klasyczną prostą formę i nieskomplikowany dach, co korzystnie wpływa na oszczędności związane z jego budową oraz późniejszą eksploatacją. Elementy drewniane na elewacji zapewniają mu nowoczesny wygląd, a zadaszony taras z pewnością będzie miejscem odpoczynku i relaksu. W ciągu dnia domownicy mają do dyspozycji duży, dobrze oświetlony salon, połączony z jadalnią, która płynnie przechodzi w kuchnię. Nie zapomniano również o praktycznej spiżarni i dodatkowej toalecie, dostępnej z korytarza. Część nocna to cztery ustawne pokoje, łazienka z miejscem na wannę i prysznic oraz praktyczna pralnia. Do garażu dostajemy się z korytarza. Za nim znajduje się duża kotłownia z wyjściem na zewnątrz. W domu zaprojektowano dwa rodzaje ogrzewania: gazowe oraz na paliwo stałe. Od przyszłego inwestora zależy, które z nich wykorzysta w swoim domu. W budynku zaprojektowano solidny i wytrzymały stop żelbetowy i tradycyjną więźbę drewnianą. W korytarzu zaprojektowano schody prowadzące na strych o powierzchni użytkowej ponad 70 m². Tę dodatkową przestrzeń można zaadaptować na pokój hobby, studio, pracownię lub dodatkowe pomieszczenia mieszkalne.


W domu zaprojektowano wentylację grawitacyjną oraz, jako alternatywę, wentylację mechaniczną z rekuperacją. Budynek zaprojektowano w oparciu o najnowsze przepisy prawa budowlanego, z dużą dbałością o jego wpływ na środowisko naturalne.

Technologia wykonania:

  • Budynek posadowiony został na fundamentach betonowych.

  • Ściany zewnętrzne: dwuwarstwowe z betonu komórkowego 24cm + 20cm styropianu.

  • Ściany wewnętrzne: z betonu komórkowego.

  • Strop: żelbetowy, wylewany, więźba dachowa drewniana, tradycyjna.

  • Pokrycie dachu: dachówka cementowa lub ceramiczna.

  • Wentylacja: grawitacyjna + jako alternatywa: wentylacja mechaniczna z rekuperacją.

Rzuty:
Rzut parteru
Tamara 4 - Rzut parteru
Opis pomieszczeń:
1.Wiatrołap - 3.37 m²
2.Hol + komunikacja - 18.07 m²
3.WC - 1.8 m²
4.Spiżarnia - 2.3 m²
5.Kuchnia - 10.6 m²
6.Salon + jadalnia - 29.1 m²
7.Pokój - 11.84 m²
8.Pokój - 12.02 m²
9.Pokój - 13.7 m²
10.Korytarz - 2.37 m²
11.Pokój - 10.1 m²
12.Łazienka - 7.04 m²
13.Pralnia - 2.93 m²
14.Kotłownia - 7.0 m²
15.Garaż - 20.75 m²
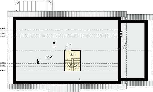
Rzut strychu do adaptacji
Tamara 4 - Rzut strychu do adaptacji
Opis pomieszczeń:
1.Komunikacja - 2.7 m²
2.Strych - 69.48 m²
Elewacje:
Elewacja przednia
Elewacja tylna
Elewacja lewa
Elewacja prawa

Potrzebujesz porady...?
Skontaktuj się z nami - jesteśmy do Twojej dyspozycji.

tel: 52 384 49 90 email: projekty@tooba.pl
kom: 605 071 505 kom: 502 363 539 kom: 502 363 364