Projekt DN 120 (TIQ-967)
Dane ogólne:
CENA:2900 zł
pow. użytkowa: 167,67m²
pow. zabudowy: 178 m²
min. wym. działki: 22,82 x 24,46 m
kondygnacje: piętrowy
poddasze: bez poddasza
rodzaj zabudowy: wolnostojący
technologia: murowany
styl: nowoczesna elewacja
piwnica: nie
garaż: dwustanowiskowy
rodzaj dachu: czterospadowy
pow. dachu: b/d
nachylenie dachu: 25°
wysokość domu: 9 m
kubatura: 540 m³
liczba pokoi: 5
liczba łazienek: 2
kominek: tak
Opis projektu:

Dom współczesny w stylu willi podmiejskiej, piętrowy z wbudowanym garażem 2-stanowiskowym.


Projekt energooszczędny: dom samowystarczalny energetycznie. Spełnia wymagania UE obowiązujące od 2021r. Charakterystyka energetyczna w przedziale 36-40 [kWh/m2/rok] w przypadku montażu instalacji pompy ciepła i paneli fotowoltaicznych. Charakterystyka energetyczna w granicach 75 [kWh/m2/rok] bez montażu instalacji  energooszczędnych.


Zasady działania domu samowystarczalnego energetycznie:
Nowoczesny, energooszczędny dom + energia elektryczna z paneli fotowoltaicznych umieszczonych na dachu + pompa ciepła do ogrzewania domu i ciepłej wody użytkowej + umowa z zakładem energetycznym o przyjmowaniu nadwyżki wyprodukowanej przez panele fotowoltaiczne energii elektrycznej latem i odbioru zimą.


Pompa ciepła to jedna z najtańszych form ogrzewania, wykorzystująca darmową energię cieplną gruntu, wody lub powietrza. Nowoczesne i drogie urządzenie. Ale w okresie zimowym, kiedy spełnia swój podstawowy cel, czyli dostarcza ciepło do ogrzewania domu, potrzebuje energii elektrycznej.


Własną energię elektryczną uzyskujemy z paneli fotowoltaicznych umieszczonych na dachu domu, ale skuteczne działanie sprawdza się w Polsce przede wszystkim latem. Dopiero możliwość odprowadzenia własnej wyprodukowanej energii elektrycznej do sieci energetycznej latem i odbiór jej zimą pozwala na funkcjonowanie domu samowystarczalnego energetycznie.

Technologia wykonania:

  • Ściany: beton komórkowy, ceramika, silikaty.

  • Strop: żelbetowy.

  • Dach: dachówka, blachodachówka, blacha.

  • Instalacja grzewcza: gaz/paliwo stałe, pompa ciepła, panele fotowoltaiczne.

Rzuty:
Rzut parteru
DN 120 - Rzut parteru
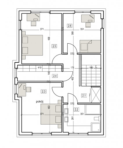
Rzut piętra
DN 120 - Rzut piętra
Elewacje:

Potrzebujesz porady...?
Skontaktuj się z nami - jesteśmy do Twojej dyspozycji.

tel: 52 384 49 90 email: projekty@tooba.pl
kom: 605 071 505 kom: 502 363 539 kom: 502 363 364