Projekt Gustowny 01 (TPC-855) - lustrzane odbicie
Dane ogólne:
CENA:5800 zł
pow. użytkowa: 161,41m²
pow. zabudowy: 231,54 m²
min. wym. działki: 27,5 x 24,15 m
kondygnacje: parterowy
poddasze: null
rodzaj zabudowy: wolnostojący
technologia: murowany
styl: nowoczesny
piwnica: nie
garaż: dwustanowiskowy
rodzaj dachu: wielospadowy
pow. dachu: b/d
nachylenie dachu: 35°
wysokość domu: 6,9 m
kubatura: 1294,96 m³
liczba pokoi: 5
liczba łazienek: 1
kominek: b/d
Opis projektu:
Technologia wykonania:

  • Fundamenty: ławy żelbetowe.

  • Ściany konstrukcja: pustak ceramiczny Porotherm.

  • Ściany elewacja: tynk, okładzina drewniana.

  • Stropy: żelbetowe monolityczne.

  • Dach konstrukcja: więźba drewniana płatwiowo-kleszczowa.

  • Dach pokrycie: blacha stalowa cynkowana powlekana na rąbek stojący.

  • Schody: żelbetowe.

  • Ogrzewanie kocioł: kocioł gazowy dwufunkcyjny.

  • Ogrzewanie grzejniki: grzejniki ścienne + ogrzewanie podłogowe.

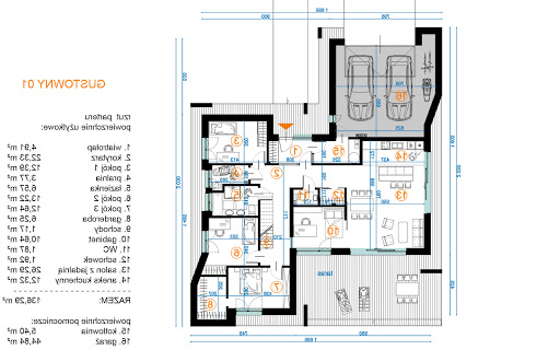
Rzuty:
Rzut parteru
Gustowny 01 - Rzut parteru
Opis pomieszczeń:
1.Wiatrołap - 4.91 m²
2.Korytarz - 22.33 m²
3.Pokój 1 - 12.39 m²
4.Pralnia - 3.77 m²
5.Łazienka - 6.57 m²
6.Pokój 2 - 13.22 m²
7.Pokój 3 - 12.64 m²
8.Garderoba - 6.25 m²
9.Schody - 1.17 m²
10.Gabinet - 10.64 m²
11.WC - 1.87 m²
12.Schowek - 1.92 m²
13.Salon z jadalnią - 26.29 m²
14.Aneks kuchenny - 12.32 m²
15.Kotłownia - 5.4 m²
16.Garaż - 44.84 m²
Rzut poddasza
Gustowny 01 - Rzut poddasza
Opis pomieszczeń:
1.Schody - 2.34 m²
2.Pokój hobby / pracownia - 16.06 m²
3.Schowek - 6.72 m²
Elewacje:
Elewacja przednia
Elewacja tylna
Elewacja lewa
Elewacja prawa

Potrzebujesz porady...?
Skontaktuj się z nami - jesteśmy do Twojej dyspozycji.

tel: 52 384 49 90 email: projekty@tooba.pl
kom: 605 071 505 kom: 502 363 539 kom: 502 363 364