Projekt Podsarnie 1mk (TWL-311) - lustrzane odbicie
Dane ogólne:
CENA:6880 zł
pow. użytkowa: 199,42m²
pow. zabudowy: 170,19 m²
min. wym. działki: 20,1 x 23,15 m
kondygnacje: parterowy
poddasze: użytkowe
rodzaj zabudowy: wolnostojący
technologia: murowany
styl: nowoczesna elewacja
piwnica: nie
garaż: bez garażu
rodzaj dachu: dwuspadowy
pow. dachu: 301,8 m²
nachylenie dachu: 42°
wysokość domu: 9,18 m
kubatura: 940,23 m³
liczba pokoi: 5
liczba łazienek: 3
kominek: tak
Opis projektu:

Dom z poddaszem. Duży salon z aneksem kuchennym, kominkiem i wyjściem na taras. Pokój do pracy, łazienka, komunikacja, wiatrołap i kotłownia. Na poddaszu pokój z własną łazienką i garderobą, dwa inne pokoje, łazienka, komunikacja i balkon.

Technologia wykonania:

  • Strop: płyta żelbetowa.

  • Pokrycie dachu: dachówka ceramiczna.

  • Ściany zewnętrzne: pustaki ceramiczne + styropian.

  • Ściany wewnętrzne: pustaki ceramiczne.

  • Typ ogrzewania: kocioł gazowy lub kocioł na paliwo stałe.

  • Wysokość ścianki kolankowej: 0.64 m.

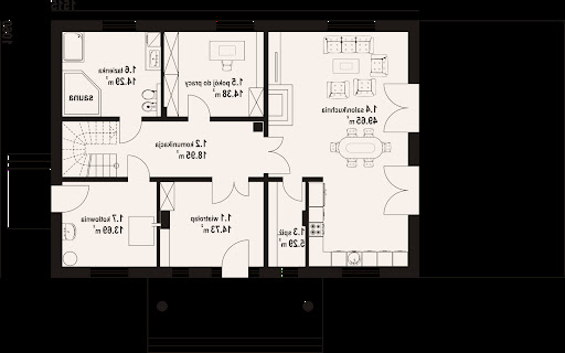
Rzuty:
Rzut parteru
Podsarnie 1mk - Rzut parteru
Opis pomieszczeń:
1.1.wiatrołap - 14.73 m²
1.2.komunikacja - 18.95 m²
1.3.spiżarka - 5.29 m²
1.4.kuchnia, salon - 49.65 m²
1.5.pokój do pracy - 14.38 m²
1.6.łazienka - 14.29 m²
1.7.kotłownia - 13.69 m²
Rzut poddasza
Podsarnie 1mk - Rzut poddasza
Opis pomieszczeń:
2.1.komunikacja - 17.45 m²
2.2.łazienka - 8.69 m²
2.3.pokój - 20.13 m²
2.4.garderoba - 8.8 m²
2.5.pokój - 19.44 m²
2.6.pokój - 12.65 m²
2.7.łazienka - 9.06 m²
Elewacje:
Elewacja przednia
Elewacja tylna
Elewacja lewa
Elewacja prawa

Potrzebujesz porady...?
Skontaktuj się z nami - jesteśmy do Twojej dyspozycji.

tel: 52 384 49 90 email: projekty@tooba.pl
kom: 605 071 505 kom: 502 363 539 kom: 502 363 364