Projekt Domek Lipowy 020 ET (TLQ-728) - lustrzane odbicie
Dane ogólne:
CENA:3299 zł
pow. użytkowa: 95,23m²
pow. zabudowy: 79,34 m²
min. wym. działki: 15,26 x 18,24 m
kondygnacje: parterowy
poddasze: null
rodzaj zabudowy: wolnostojący
technologia: murowany
styl: tradycyjny
piwnica: nie
garaż: bez garażu
rodzaj dachu: dwuspadowy
pow. dachu: b/d
nachylenie dachu: b/d
wysokość domu: 7,23 m
kubatura: 274,6 m³
liczba pokoi: 5
liczba łazienek: 2
kominek: tak
Opis projektu:

Prosty, tani w budowie i eksploatacji domek murowany dla 4-osobowej rodziny. Doskonałe ocieplenie i wentylacja z odzyskiem ciepła sprzyjają komfortowi użytkowania.

Technologia wykonania:

  • Ściany: silikaty 18 cm + styropian 031 - 20 cm (U=0,13 W/m2*K).

  • Strop: żelbetowy.

  • Dach: gonty bitumiczne / dachówka / blacha (U=0,10 W/m2*K).

Rzuty:
Rzut parteru
Domek Lipowy 020 ET - Rzut parteru
Opis pomieszczeń:
1.Przedsionek - 2.69 m²
2.Hol + schody - 11.35 m²
3.Aneks kuchenny - 7.36 m²
4.Pokój dzienny - 18.88 m²
5.Pokój - 11.08 m²
6.Łazienka - 5.2 m²
7.Pom. techniczne - 2.79 m²
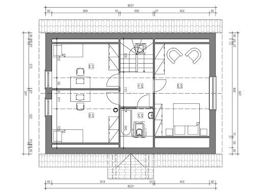
Rzut poddasza
Domek Lipowy 020 ET - Rzut poddasza
Opis pomieszczeń:
1.Korytarz - 4.13 m²
2.Sypialnia 1 - 13.53 m²
3.Sypialnia 2 - 7.01 m²
4.Sypialnia 3 - 9.03 m²
5.Łazienka - 2.19 m²
Elewacje:
Elewacja przednia
Elewacja tylna
Elewacja lewa
Elewacja prawa

Potrzebujesz porady...?
Skontaktuj się z nami - jesteśmy do Twojej dyspozycji.

tel: 52 384 49 90 email: projekty@tooba.pl
kom: 605 071 505 kom: 502 363 539 kom: 502 363 364