Projekt Wymarzony 4 (TFD-917) - lustrzane odbicie
Dane ogólne:
CENA:6090 zł
pow. użytkowa: 127,02m²
pow. zabudowy: 207,35 m²
min. wym. działki: 21,05 x 29 m
kondygnacje: parterowy
poddasze: do adaptacji
rodzaj zabudowy: wolnostojący
technologia: murowany
styl: nowoczesny
piwnica: nie
garaż: dwustanowiskowy
rodzaj dachu: dwuspadowy
pow. dachu: b/d
nachylenie dachu: 35°
wysokość domu: 6,78 m
kubatura: 989 m³
liczba pokoi: 4
liczba łazienek: 1
kominek: tak
Opis projektu:

Wymarzony 4 jest kolejną propozycją z serii domów „Wymarzonych” – budynek parterowy z poddaszem do zagospodarowania, zbudowany na planie prostokąta, z wystającą na froncie częścią garażową, przykryty dwuspadowym dachem o kącie nachylenia 35 stopni. Projekt jest utrzymany w nowoczesnej stylistyce domu –stodoły, coraz częściej wybieranej przez Inwestorów. Dach budynku nie ma okapów, pokrycie dachowe zaprojektowano z blachy na rąbek stojący, a ściany zewnętrzne wykończono pionową okładziną z drewnianej kantówki. Takie zestawienie materiałów, połączone z powierzchniami z płyt imitujących beton oraz szarą stolarką okienną tworzy bardzo atrakcyjny wygląd budynku. Głównymi detalami stylistycznymi są: wystający garaż, podcień wejściowy i reprezentacyjne drzwi frontowe z naświetlami. W szczycie domu z kolei dwukondygnacyjne okno salonu i taras częściowo przykryty pergolą. Dzięki lokalizacji tarasu z boku budynku dom nadaje się doskonale nawet na działkę z wjazdem od południa. Salon w „Wymarzonym 4” jest oświetlony z trzech stron, zatem budynek można lokalizować na działce z ogródkiem z boku albo z tyłu, a nawet od frontu domu, w narożniku działki. Wnętrze: oryginalna lokalizacja garażu, w centralnej części bryły, ułatwia komunikację między garażem, przedsionkiem i kotłownią, co jest rzadko spotykane w domach parterowych o prostokątnym kształcie. Garaż jest w idealnym miejscu – przy wejściu, blisko holu i kuchni. Kotłownia obok salonu i kominka sprawia, że mamy jeden wspólny komin w całym budynku. Z przedsionka wchodzimy do holu i części dziennej połączonych pomieszczeń salonu, jadalni i kuchni. Kuchnia jest oddzielona od jadalni półwyspem z barkiem. Z kuchni mamy dostęp do spiżarni, pralni i wyjścia gospodarczego na tył domu. Salon doświetlony jest z każdej strony, a otwarcie sufitu nad salonem powiększa jego wysokość, tworząc atrakcyjną przestrzeń z antresolą na poddaszu. Z drugiej strony domu mamy trzy sypialnie, łazienkę i garderobę. Nad parterem zaprojektowano poddasze, z antresolą nad salonem powiększającą jego przestrzeń i z dodatkową powierzchnią poddasza, która może pozostać strychem nieużytkowym (magazynem domowym) lub może być zagospodarowana na pokoje użytkowe – według życzenia i potrzeb właścicieli. „Wymarzony 4 ” to komfortowa, wygodna i nowoczesna willa dla cztero-, sześcioosobowej rodziny – funkcjonalna i praktyczna. Budynek jest energooszczędny, ma prostą konstrukcję, będzie łatwy w budowie i tani w utrzymaniu. Zapraszamy!

Technologia wykonania:

  • Fundamenty: betonowe ławy i ściany fundamentowe z bloczków betonowych.

  • Ściany zewnętrzne: ściany murowane – bloczki gazobetonowe gr. 24 cm + styropian + tynk cienkowarstwowy.

  • Strop: monolityczny betonowy.

  • Elewacje: szalówka drewniana.

  • Pokrycie dachu: blacha na rąbek.

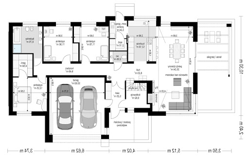
Rzuty:
Rzut parteru
Wymarzony 4 - Rzut parteru
Opis pomieszczeń:
1.Sień - 5.2 m²
2.Hol - 8.23 m²
3.Pokój dzienny - 35.34 m²
4.Kuchnia - 12.18 m²
5.Pom. gospodarcze - 3.24 m²
6.Spiżarnia - 2.1 m²
7.WC - 2.05 m²
8.Sypialnia - 11.78 m²
9.Sypialnia - 11.9 m²
10.Korytarz - 9.49 m²
11.Łazienka - 8.76 m²
12.Sypialnia - 12.25 m²
13.Garderoba - 4.58 m²
14.Kotłownia - 5.62 m²
15.Garaż - 33.63 m²
Rzut strychu
Wymarzony 4 - Rzut strychu
Opis pomieszczeń:
1.Strych - antresola - 8.85 m²
2.Strych - 34.89 m²
Elewacje:
Elewacja przednia
Elewacja tylna
Elewacja lewa
Elewacja prawa

Potrzebujesz porady...?
Skontaktuj się z nami - jesteśmy do Twojej dyspozycji.

tel: 52 384 49 90 email: projekty@tooba.pl
kom: 605 071 505 kom: 502 363 539 kom: 502 363 364