Projekt Magnat 3 (TIQ-644)
Dane ogólne:
CENA:6990 zł
pow. użytkowa: 147,75m²
pow. zabudowy: 128,93 m²
min. wym. działki: 19,09 x 21,08 m
kondygnacje: piętrowy
poddasze: null
rodzaj zabudowy: wolnostojący
technologia: murowany
styl: tradycyjny
piwnica: nie
garaż: jednostanowiskowy
rodzaj dachu: wielospadowy
pow. dachu: 177,83 m²
nachylenie dachu: 30°
wysokość domu: 8,75 m
kubatura: 759 m³
liczba pokoi: 6
liczba łazienek: 3
kominek: tak
Opis projektu:

Magnat 3 jest kolejną wersją popularnego projektu z serii „Magnat” – tym razem mniejszy dom, o pomniejszonym rzucie, wymiarach zewnętrznych i powierzchni. Magnat 3 to stylowa willa przeznaczona dla 4-5-osobowej rodziny. Dom ma pełne dwie kondygnacje – parter i piętro. Budynek zaprojektowano nawiązując do przedwojennej architektury rezydencjonalnej Europy. Bryłę domu zaplanowano na planie prostokąta, z osią symetrii między reprezentacyjnym portykiem wejściowym i eleganckim wyjściem do ogrodu z salonu, przez zadaszony taras ze schodkami. Elewację frontową i ogrodową zdobią piękne okna z podziałami i sztukaterią. Całość bryły przykrywa czterospadowy łagodny dach. Z boku dodana jest bryła garażu. „Magnat 3” to taka mała rezydencja – budynek o normalnej, niewyolbrzymionej skali, ubrany w elegancką stylową formę. Parter domu: z obszernego przedsionka przechodzimy do jednoprzestrzennego wnętrza salonu i jadalni, połączonego z holem, z pięknymi lekko zabiegowymi schodami. Salon łączy się z częściowo otwartą kuchnią ze spiżarnią. Od frontu mieści się też dodatkowy pokój – gabinet. Pozostałe pomieszczenia to łazienka, kotłownia oraz część gospodarcza z garażem. Na piętrze zaprojektowano cztery sypialnie z dwiema łazienkami, w tym apartament rodziców z osobną łazienką, garderobą i balkonem otwartym na ogród. „Magnat 3” to przykład ponadczasowej architektury, która przetrwa wszystkie tymczasowe mody. Jednocześnie dom nie jest duży, jest za to dość prosty w budowie, ma praktyczne i funkcjonalne wnętrze. Stanowi idealną propozycję dla osób marzących o stylowej willi, ale chcących trzymać koszty budowy w rozsądnych granicach. Zapraszamy!

Technologia wykonania:

  • Fundamenty: betonowe ławy i ściany fundamentowe z bloczków betonowych.

  • Ściany zewnętrzne: ściany murowane – pustaki porotherm 25 + styropian.

  • Strop: monolityczny betonowy.

  • Elewacje: tynk cienkowarstwowy.

  • Pokrycie dachu: dachówka.

Rzuty:
Rzut parteru
Magnat 3 - Rzut parteru
Opis pomieszczeń:
1.Sień - 4.13 m²
2.Hol - 11.45 m²
3.Pokój dzienny - 33.23 m²
4.Kuchnia - 8.8 m²
5.Spiżarnia - 1.58 m²
6.Pokój / gabinet - 9.48 m²
7.Łazienka - 2.6 m²
8.Kotłownia - 6.62 m²
9.Garaż - 22.65 m²
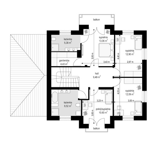
Rzut piętra
Magnat 3 - Rzut piętra
Opis pomieszczeń:
1.Hol - 9.49 m²
2.Sypialnia - 13.06 m²
3.Łazienka - 5.38 m²
4.Garderoba - 4.43 m²
5.Sypialnia - 12.9 m²
6.Sypialnia - 12.09 m²
7.Pokój / sypialnia - 10.6 m²
8.Łazienka - 8.52 m²
Elewacje:
Elewacja przednia
Elewacja tylna
Elewacja lewa
Elewacja prawa

Potrzebujesz porady...?
Skontaktuj się z nami - jesteśmy do Twojej dyspozycji.

tel: 52 384 49 90 email: projekty@tooba.pl
kom: 605 071 505 kom: 502 363 539 kom: 502 363 364