Projekt E-210 (TQT-159) - lustrzane odbicie
Dane ogólne:
CENA:5990 zł
pow. użytkowa: 132,2m²
pow. zabudowy: 157,2 m²
min. wym. działki: 20,41 x 23,31 m
kondygnacje: parterowy
poddasze: null
rodzaj zabudowy: wolnostojący
technologia: murowany
styl: nowoczesna elewacja
piwnica: nie
garaż: jednostanowiskowy
rodzaj dachu: wielospadowy
pow. dachu: 230 m²
nachylenie dachu: 37°
wysokość domu: 8,2 m
kubatura: 524,1 m³
liczba pokoi: 5
liczba łazienek: 2
kominek: tak
Opis projektu:
Technologia wykonania:

  • Ściany: 25cm ceramika + 18cm styropian.

  • Strop: wylewany żelbetowy.

  • Pokrycie dachowe: dachówka cementowa.

  • Ocieplenie posadzki na gruncie: 20cm styropian.

  • Ocieplenie dachu: 25-30cm wełna mineralna.

  • Stolarka okienna: drewniana.

  • Wykończenie zewnetrzne: kamień, płytki klinkierowe lub drewno.

  • Ogrzewanie: gazowe.

  • Wentylacja: mechaniczna.

Rzuty:
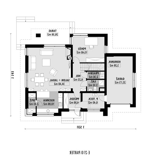
Rzut parteru
E-210 - Rzut parteru
Opis pomieszczeń:
1.Przedsionek - 4.98 m²
2.Salon + jadalnia - 34.4 m²
3.Kuchnia - 10.09 m²
4.Hol - 6.23 m²
5.Pokój - 15.4 m²
6.Pralnia - 2.36 m²
7.Łazienka - 3.32 m²
8.Komunikacja - 3.28 m²
9.Pom. techniczne - 6.4 m²
10.Garaż - 23.73 m²
11.Taras - 26.56 m²
Rzut poddasza
E-210 - Rzut poddasza
Opis pomieszczeń:
1.Hol - 9.55 m²
2.Sypialnia - 12.05 m²
3.Sypialnia - 10.71 m²
4.Łazienka - 5.25 m²
5.Schowek - 2.42 m²
6.Sypialnia - 9.33 m²
7.Strych - 23.89 m²
Elewacje:
Elewacja przednia
Elewacja tylna
Elewacja lewa
Elewacja prawa

Potrzebujesz porady...?
Skontaktuj się z nami - jesteśmy do Twojej dyspozycji.

tel: 52 384 49 90 email: projekty@tooba.pl
kom: 605 071 505 kom: 502 363 539 kom: 502 363 364