Projekt Dom z widokiem 6 B (TCW-565)
Dane ogólne:
CENA:9950 zł
pow. użytkowa: 218,1m²
pow. zabudowy: 188,48 m²
min. wym. działki: 21,39 x 29,04 m
kondygnacje: piętrowy
poddasze: null
rodzaj zabudowy: wolnostojący
technologia: murowany
styl: nowoczesny
piwnica: nie
garaż: dwustanowiskowy
rodzaj dachu: wielospadowy
pow. dachu: 295 m²
nachylenie dachu: 25°
wysokość domu: 8,42 m
kubatura: 956 m³
liczba pokoi: 5
liczba łazienek: 2
kominek: b/d
Opis projektu:

Dom z widokiem 6 B jest kolejną propozycją domu piętrowego z serii „Domów z widokiem” z naszej pracowni. Prezentowany projekt to duży piętrowy dom dla 4-5-osobowej rodziny, z rozbudowanym programem użytkowym, oraz dodatkową – wymarzoną przez wielu Inwestorów oranżerią w części dziennej. Budynek został zaprojektowany na planie litery „T”, z główną piętrową bryłą, oraz dwiema dobudowanymi częściami parterowymi. Architektura domu jest nowoczesna. Zastosowane materiały i detale tworzą wysmakowaną podmiejską willę. Podział elewacji na poziome pasy, oraz duże narożne przeszklenia, nadają sylwetce domu atrakcyjnego wyglądu. Wnętrze to otwarta jednoprzestrzenna część dzienna na parterze, cześć gospodarczo-garażowa, oraz sypialnie na piętrze. Zrezygnowano z pustki nad pokojem dziennym – która nie każdemu Inwestorowi odpowiada. Do domu wchodzimy przez dużą sień wprost do holu i salonu. Salon, jadalnia i kuchnia tworzą ogromną otwartą wspólną przestrzeń. Kuchnia, jak na skalę budynku, jest bardzo duża – zmieści się w niej dowolnej wielkości wyspa. Przy kuchni mamy spiżarnię i przejście do ogrodu zimowego, gdzie domownicy w ogrzewanym green-hausie mogą zjeść posiłek, albo odpocząć. To prawdziwa dodatkowa atrakcja domu. Obok mamy salon z dużym stołem jadalnym i meblami wypoczynkowymi. W wersji bazowej projektu zrezygnowano z kominka – można go bez kłopotu dodać. Z holu i salonu widoczne są reprezentacyjne, ozdobne schody na piętro. Na parterze przewidziano jeszcze dodatkowy pokój – gabinet lub sypialnię gościnną. Na piętrze mamy dwie sypialnie dziecięce, łazienkę, pralnię, oraz apartament rodziców, z sypialnią, garderobą i łazienką, oraz dodatkowym dostępem do strychu nad garażem, który można zaadaptować jako kolejną garderobę, albo pokój rekreacyjny. Dom z widokiem 6 B to funkcjonalna, nowoczesna, racjonalnie zaprojektowana willa. W projekcie zastosowano energooszczędne rozwiązania. Budynek będzie niedrogi w późniejszej eksploatacji. To doskonała propozycja dla osób marzących o pięknym piętrowym praktycznym domu dla swojej rodziny. Zapraszamy!

Technologia wykonania:

  • Fundamenty: betonowe ławy i ściany fundamentowe z bloczków betonowych.

  • Ściany zewnętrzne:  ściany murowane - pustaki porotherm 25 + styropian + tynk cienkowarstwowy.

  • Strop: monolityczny żelbetowy.

  • Elewacje: tynk cienkowarstwowy na styropianie

  • Pokrycie dachu: dachówka.

Rzuty:
Rzut parteru
Dom z widokiem 6 B - Rzut parteru
Opis pomieszczeń:
1.Sień - 5.31 m²
2.Hol - 8.91 m²
3.Pokój dzienny / jadalnia - 50.61 m²
4.Kuchnia - 23.46 m²
5.Spiżarnia - 2.91 m²
6.Ogród zimowy - 23.1 m²
7.Pokój - 13.53 m²
8.WC - 2.07 m²
9.Kotłownia - 3.24 m²
10.Garaż - 42.93 m²
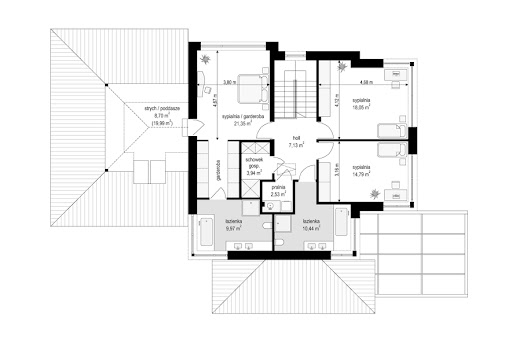
Rzut piętra
Dom z widokiem 6 B - Rzut piętra
Opis pomieszczeń:
1.Hol - 7.13 m²
2.Sypialnia + garderoba - 21.35 m²
3.Łazienka - 9.97 m²
4.Łazienka - 10.44 m²
5.Sypialnia - 14.79 m²
6.Sypialnia - 18.05 m²
7.Strych / poddasze - 8.7 m²
8.Schowek gosp. - 3.94 m²
9.Pralnia - 2.53 m²
Elewacje:
Elewacja przednia
Elewacja tylna
Elewacja lewa
Elewacja prawa

Potrzebujesz porady...?
Skontaktuj się z nami - jesteśmy do Twojej dyspozycji.

tel: 52 384 49 90 email: projekty@tooba.pl
kom: 605 071 505 kom: 502 363 539 kom: 502 363 364