Projekt UA50 (TQS-754) - lustrzane odbicie
Dane ogólne:
CENA:6600 zł
pow. użytkowa: 204,2m²
pow. zabudowy: 194,16 m²
min. wym. działki: 20,64 x 28,27 m
kondygnacje: piętrowy
poddasze: null
rodzaj zabudowy: ekskluzywny
technologia: murowany
styl: tradycyjny
piwnica: nie
garaż: dwustanowiskowy
rodzaj dachu: wielospadowy
pow. dachu: 234 m²
nachylenie dachu: 27°
wysokość domu: 9,3 m
kubatura: 1160 m³
liczba pokoi: 6
liczba łazienek: 3
kominek: tak
Opis projektu:

UA50 to okazały budynek jednorodzinny dla rodziny cztero-sześcioosobowej. Składa się z 2 kondygnacji przekrytych dachem wielospadowym. Strefa wejściowa to przestronny wiatrołap z przylegającą do niego garderobą, która stanowi zarazem łącznik między częścią gospodarczą i dzienną. W reprezentacyjnym hallu wejściowym, naprzeciwko wejścia, zlokalizowana jest klatka schodowa. Przylegają do niego również gabinet oraz ogólnodostępna łazienka. Lewą stronę parteru zajmuje jednoprzestrzenne, dobrze doświetlone pomieszczenie, w którym znajduje się duża kuchnia, jadalnia z wyjściem na częściowo zadaszony taras oraz salon. Strefa nocna na piętrze to kompleks 4 pokoi sypialnych, z czego jedna to sypialnia typu master, wyposażona we własną garderobę, łazienkę oraz z dostępem do balkonu. Na tej kondygnacji znajduje się również ogólnodostępna łazienka oraz przestronne pomieszczenie gospodarcze zlokalizowane nad dwustanowiskowym garażem.

Technologia wykonania:

  • Fundamenty: bloczek betonowy, lany beton.

  • Ściany: gazobeton, silikaty, ceramika.

  • Strop: żelbet.

  • Dach: więźba, blacha, dachówka.

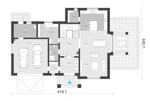
Rzuty:
Rzut parteru
UA50 - Rzut parteru
Opis pomieszczeń:
1.Wiatrołap - 9.34 m²
2.Korytarz - 10.95 m²
3.Pokój dzienny - 25.64 m²
4.Jadalnia - 16.03 m²
5.Kuchnia - 17.5 m²
6.Spiżarnia - 4.23 m²
7.Gabinet - 10.9 m²
8.Łazienka - 4.78 m²
9.Garderoba - 3.38 m²
10.Pom. gospodarcze - 9.99 m²
11.Garaż - 36.72 m²
Rzut piętra
UA50 - Rzut piętra
Opis pomieszczeń:
1.Korytarz - 12.13 m²
2.Sypialnia - 15.7 m²
3.Pokoj 1 - 14.12 m²
4.Pokój 2 - 11.68 m²
5.Pokój 3 - 15.9 m²
6.Łazienka - 10.12 m²
7.Garderoba - 7.49 m²
8.Łazienka - 7.27 m²
9.Pom. gospodarcze - 6.82 m²
Elewacje:
Elewacja przednia
Elewacja boczna
TYŁ
Elewacja boczna

Potrzebujesz porady...?
Skontaktuj się z nami - jesteśmy do Twojej dyspozycji.

tel: 52 384 49 90 email: projekty@tooba.pl
kom: 605 071 505 kom: 502 363 539 kom: 502 363 364