Projekt Domidea 58 dG w2 (TLA-719)
Dane ogólne:
CENA:6150 zł
pow. użytkowa: 119,63m²
pow. zabudowy: 116,8 m²
min. wym. działki: 15,8 x 22,9 m
kondygnacje: parterowy
poddasze: użytkowe
rodzaj zabudowy: wolnostojący
technologia: murowany
styl: nowoczesna elewacja
piwnica: nie
garaż: jednostanowiskowy
rodzaj dachu: dwuspadowy
pow. dachu: 179,15 m²
nachylenie dachu: 40°
wysokość domu: 7,99 m
kubatura: 373,27 m³
liczba pokoi: 6
liczba łazienek: 2
kominek: tak
Opis projektu:
Technologia wykonania:

  • Ściany zewnętrzne: tradycyjne murowane dwuwarstwowe – pustak ceramiczny 25cm i styropian.

  • Strop: gęstożebrowy.

  • Schody: żelbetowe monolityczne.

  • Dach: o konstrukcji drewnianej z pokryciem z dachówki ceramicznej, cementowej lub blachodachówki.

Rzuty:
Rzut parteru
Domidea 58 dG w2 - Rzut parteru
Opis pomieszczeń:
1.Wiatrołap - 2.33 m²
2.Hol - 4.72 m²
3.Salon + kuchnia - 36.16 m²
4.Łazienka - 3.79 m²
5.Sypialnia - 11.0 m²
6.Kotłownia i pralnia - 6.31 m²
7.Garaż - 21.52 m²
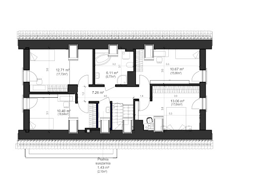
Rzut poddasza
Domidea 58 dG w2 - Rzut poddasza
Opis pomieszczeń:
1.Przedpokój - 7.26 m²
2.Sypialnia - 10.4 m²
3.Pokój - 12.71 m²
4.Pokój - 10.67 m²
5.Pokój - 13.06 m²
6.Łazienka - 6.11 m²
7.Pom. gosp. - 1.43 m²
Elewacje:
Elewacja przednia
Elewacja tylna
Elewacja lewa
Elewacja prawa

Potrzebujesz porady...?
Skontaktuj się z nami - jesteśmy do Twojej dyspozycji.

tel: 52 384 49 90 email: projekty@tooba.pl
kom: 605 071 505 kom: 502 363 539 kom: 502 363 364