Projekt E-187 (TSY-414) - lustrzane odbicie
Dane ogólne:
CENA:6490 zł
pow. użytkowa: 157,3m²
pow. zabudowy: 183,1 m²
min. wym. działki: 22,86 x 23,01 m
kondygnacje: piętrowy
poddasze: bez poddasza
rodzaj zabudowy: wolnostojący
technologia: murowany
styl: nowoczesny
piwnica: nie
garaż: dwustanowiskowy
rodzaj dachu: płaski
pow. dachu: 113,1 m²
nachylenie dachu:
wysokość domu: 7,6 m
kubatura: 590,1 m³
liczba pokoi: 5
liczba łazienek: 2
kominek: tak
Opis projektu:
Technologia wykonania:

  • Ściany: 25cm ceramika + 18cm styropian.

  • Strop: wylewany żelbetowy.

  • Pokrycie dachowe: papa.

  • Ocieplenie posadzki na gruncie: 20cm styropian.

  • Ocieplenie dachu: 25-30cm styropian.

  • Stolarka okienna: drewniana.

  • Wykończenie płytki klinkierowe.

  • Ogrzewanie: gazowe.

  • Wentylacja: grawitacyjna.

Rzuty:
Rzut parteru
E-187 - Rzut parteru
Opis pomieszczeń:
1.Przedsionek - 6.22 m²
2.Hol - 10.54 m²
3.Kuchnia - 12.86 m²
4.Jadalnia - 11.94 m²
5.Komunikacja - 2.78 m²
6.Salon - 31.05 m²
7.Biblioteka - 9.3 m²
8.WC - 1.56 m²
9.Pom. gospodarcze - 5.29 m²
10.Pom. techniczne - 6.08 m²
11.Garaż - 33.45 m²
12.Taras - 34.29 m²
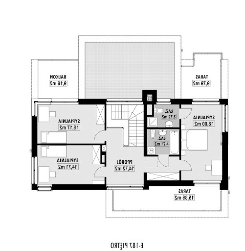
Rzut piętra
E-187 - Rzut piętra
Opis pomieszczeń:
1.Przedpokój - 14.72 m²
2.Sypialnia - 18.0 m²
3.Łazienka - 3.72 m²
4.Łazienka - 4.71 m²
5.Sypialnia - 15.17 m²
6.Sypialnia - 14.71 m²
7.Taras - 9.79 m²
8.Balkon - 9.16 m²
9.Taras - 15.35 m²
Elewacje:
Elewacja przednia
Elewacja tylna
Elewacja lewa
Elewacja prawa

Potrzebujesz porady...?
Skontaktuj się z nami - jesteśmy do Twojej dyspozycji.

tel: 52 384 49 90 email: projekty@tooba.pl
kom: 605 071 505 kom: 502 363 539 kom: 502 363 364