Projekt G316 (TJX-873) - lustrzane odbicie
Dane ogólne:
  • CENA: 2190 zł
  • Pow. użytkowa: 225,5 m²
  • Pow. zabudowy: 145,16 m²
  • Liczba stanowisk: jednostanowiskowy
  • Technologia: murowany
  • Zabudowa: garaż wolnostojący
  • Rodzaj dachu: dwuspadowy
  • Kalenica: prostopadła do drogi
  • Nachylenie dachu: 25° / 40°
  • Wysokość garażu: 8,08 m
  • Szerokość garażu: 9,5 m
  • Długość garażu: 15,6 m
  • Wys. pomieszczeń: 3,2m
  • Kubatura: 838,7 m³
  • Poddasze: tak
  • Altana: tak
  • Pom. gospodarcze: tak
Opis projektu:

Projekt garażu jednostanowiskowego, parterowego, niepodpiwniczonego z poddaszem użytkowym, przeznaczonego dla samochodów dostawczych z dwoma pomieszczeniami gospodarczymi, łazienką i tarasem. Do projektu dołączone jest zestawienie: stali, więźby dachowej oraz stolarki drzwiowej i okiennej, jak również bezpłatna zgoda na dokonanie zmian.

Technologia wykonania:

  • Budynek wykonany w technologii tradycyjnej.

  • Ściany: murowane z bloczków z betonu komórkowego grubości 40cm.

  • Bramy: o wymiarach 3,00x2,80m.

  • Strop: gęstożebrowy TERMALICA.

  • Słupy i podciągi: żelbetowe i drewniane.

  • Więźba dachowa: dwuspadowa, drewniana, pokryta blachą trapezowa.

Rzuty:
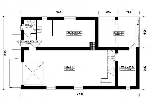
Rzut parteru
G316 - Rzut parteru
Opis pomieszczeń:
1.Garaż - 56.4 m²
2.Pom. gospodarcze - 11.28 m²
3.Komunikacja - 2.85 m²
4.Łazienka - 2.72 m²
5.Pom. gospodarcze - 26.9 m²
6.Taras - 21.44 m²
Rzut poddasza
G316 - Rzut poddasza
Opis pomieszczeń:
1.Pom. gospodarcze - 103.91 m²
Elewacje:
Elewacja przednia
Elewacja tylna
Elewacja lewa
Elewacja prawa

Potrzebujesz porady...?
Skontaktuj się z nami - jesteśmy do Twojej dyspozycji.

tel: 52 384 49 90 email: projekty@tooba.pl
kom: 605 071 505 kom: 502 363 539 kom: 502 363 364