Projekt G253 (TPJ-412) - lustrzane odbicie
Dane ogólne:
  • CENA: 990 zł
  • Pow. użytkowa: 47,54 m²
  • Pow. zabudowy: 65,8 m²
  • Liczba stanowisk: dwustanowiskowy
  • Technologia: murowany
  • Zabudowa: garaż wolnostojący
  • Rodzaj dachu: czterospadowy
  • Kalenica: prostopadła do drogi
  • Nachylenie dachu: 25°
  • Wysokość garażu: 4,45 m
  • Szerokość garażu: 7 m
  • Długość garażu: 9,4 m
  • Wys. pomieszczeń: 2,6m
  • Kubatura: 142,8 m³
  • Altana: tak
  • Pom. gospodarcze: tak
Opis projektu:

Projekt garażu dwustanowiskowego, parterowego, niepodpiwniczonego, przeznaczonego dla samochodów osobowych z pomieszczeniem gospodarczym i tarasem. Do projektu dołączone jest zestawienie: stali, więźby dachowej oraz stolarki drzwiowej i okiennej, jak również bezpłatna zgoda na dokonanie zmian.

Technologia wykonania:

  • Budynek wykonany w technologii tradycyjnej.

  • Ściany: murowane z bloczków z betonu komórkowego grubości 24cm.

  • Bramy: o wymiarach 2,50x2,20m.

  • Komin: z cegły ceramicznej pełnej.

  • Słupy i podciągi: żelbetowe.

  • Więźba dachowa: czterospadowa, drewniana, pokryta blachodachówką.

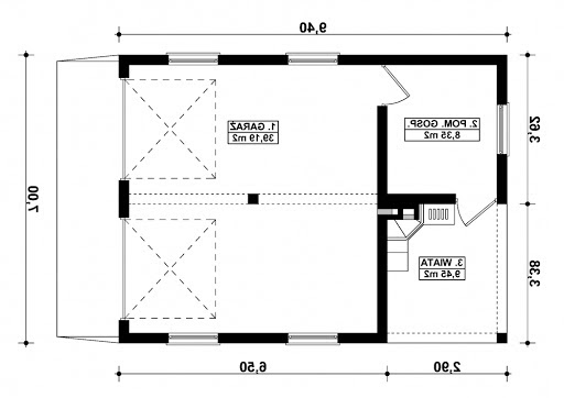
Rzuty:
Rzut parteru
G253 - Rzut parteru
Opis pomieszczeń:
1.Garaż - 39.19 m²
2.Pom. gospodarcze - 8.35 m²
3.Wiata - 9.45 m²
Elewacje:
Elewacja przednia
Elewacja tylna
Elewacja lewa
Elewacja prawa

Potrzebujesz porady...?
Skontaktuj się z nami - jesteśmy do Twojej dyspozycji.

tel: 52 384 49 90 email: projekty@tooba.pl
kom: 605 071 505 kom: 502 363 539 kom: 502 363 364