Projekt Elastyczny - C346 (TSE-576) - lustrzane odbicie
Dane ogólne:
CENA:4110 zł
pow. użytkowa: 63,8m²
pow. zabudowy: 88,4 m²
min. wym. działki: 20,8 x 14 m
kondygnacje: parterowy
poddasze: do adaptacji
rodzaj zabudowy: wolnostojący
technologia: murowany
styl: nowoczesna elewacja
piwnica: nie
garaż: bez garażu
rodzaj dachu: dwuspadowy
pow. dachu: b/d
nachylenie dachu: 35°
wysokość domu: 8,29 m
kubatura: 534,2 m³
liczba pokoi: 2
liczba łazienek: 1
kominek: tak
Opis projektu:
Rzuty:
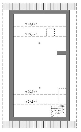
Rzut parteru
Elastyczny - C346 - Rzut parteru
Opis pomieszczeń:
1.przedsionek - 3.2 m²
2.garderoba - 3.8 m²
3.pokój dzienny - 30.0 m²
4.korytarz - 1.3 m²
5.łazienka - 6.4 m²
6.sypialnia - 12.0 m²
7.kuchnia - 7.1 m²
8.kotłownia - 5.0 m²
9.taras - 0.0 m²
Rzut poddasza do indywidualnej adaptacji (45,1 m2 powierzchni użytkowej)
Elastyczny - C346 - Rzut poddasza do indywidualnej adaptacji (45,1 m2 powierzchni użytkowej)
Opis pomieszczeń:
1.Poddasze do adaptacji - 45.1 m²
Elewacje:
Elewacje

Potrzebujesz porady...?
Skontaktuj się z nami - jesteśmy do Twojej dyspozycji.

tel: 52 384 49 90 email: projekty@tooba.pl
kom: 605 071 505 kom: 502 363 539 kom: 502 363 364