Projekt Obi (TUZ-396)
Dane ogólne:
CENA:4149 zł
pow. użytkowa: 155,53m²
pow. zabudowy: 157,59 m²
min. wym. działki: 19,12 x 23,5 m
kondygnacje: parterowy
poddasze: użytkowe
rodzaj zabudowy: wolnostojący
technologia: murowany
styl: tradycyjny
piwnica: nie
garaż: dwustanowiskowy
rodzaj dachu: wielospadowy
pow. dachu: b/d
nachylenie dachu: 37°
wysokość domu: 8,25 m
kubatura: 844 m³
liczba pokoi: 5
liczba łazienek: 3
kominek: tak
Opis projektu:

ObI to przestronny dom przeznaczony dla 4-5 osobowej rodziny. Na parterze i użytkowym poddaszu zlokalizowano wszystko, co Domownikom może być potrzebne do wygodnego życia.


Wejście do domu usytuowano w podcieniu, który chroni domowników zanim znajdą się wewnątrz obszernego wiatrołapu. Wiatrołap, oprócz swej podstawowej funkcji, spełnia rolę łącznika pomiędzy częścią mieszkalną a techniczną domu. Część dzienną domu tworzy przestronny salon z kominkiem i otwartą kuchnią, z której gospodyni ma dostęp do podręcznej spiżarki. W dyskretnym miejscu usytuowano łazienkę z toaletą. Funkcjonalności parteru dopełnia gabinet położony z dala od części dziennej, by przebywający w nim domownik miał pełen komfort i spokój do pracy, nauki lub relaksu.
Część techniczną parteru stanowi dwustanowiskowy garaż, z którego można przejść do obszernej kotłowni.


Poddasze przeznaczono w całości na część nocną. Dostęp na nie domownicy mają schodami położonymi tuż przy wyjściu z wiatrołapu. Z górnego spocznika schodów zapewniono dostęp na niższe poddasze, wygospodarowane nad garażem i kotłownią. Przeznaczono je w całości dla wygody rodziców. Mają oni dostęp do własnej łazienki i garderoby. Dla pozostałych domowników pokoje i łazienkę usytuowano wyżej. Przestronne pokoje wyposażono w zabudowane, pojemne szafy. Dla wygody wszystkich, na poddaszu urządzono pralnię z suszarnią a w holu usytuowano szafę na podręczne rzeczy typu deska do prasowania, odkurzacz, mop itp.


Niepodważalnymi atutami tego domu są przemyślany układ funkcjonalny, przestronność pomieszczeń oraz użytkowe wykorzystanie każdego metra kwadratowego powierzchni. Obi to dom, w którym z pewnością nie jedna liczna Rodzina znajdzie swój azyl.

Technologia wykonania:

  • Ściany zewnętrzne: dwuwarstwowe, beton komórkowy 24cm + styropian 15cm. 

  • Strop: płyta żelbetowa. 

  • Schody: żelbetowe, monolityczne. 

  • Dach: dach: wielospadowy, nachylenie 37^, pokrycie z dachówki ceramicznej. 

  • Ścianka kolankowa: 110 cm.

Rzuty:
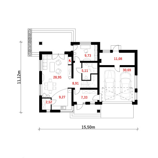
Rzut parteru
Obi - Rzut parteru
Opis pomieszczeń:
1.Wiatrołap - 7.33 m²
2.Hol - 8.91 m²
3.Salon - 28.95 m²
4.Kuchnia - 9.27 m²
5.Spiżarnia - 2.52 m²
6.Łazienka - 5.11 m²
7.Pokój - 9.73 m²
8.Garaż - 30.69 m²
9.Kotłownia - 11.08 m²
Rzut poddasza
Obi - Rzut poddasza
Opis pomieszczeń:
1.Przedpokój - 11.55 m²
2.Pokój - 19.57 m²
3.Pokój - 18.32 m²
4.Pralnia+suszarnia - 5.44 m²
5.Łazienka - 7.28 m²
6.Sypialnia - 14.52 m²
7.Garderoba - 3.71 m²
8.Łazienka - 3.31 m²
Elewacje:
Elewacja przednia
Elewacja tylna
Elewacja lewa
Elewacja prawa

Potrzebujesz porady...?
Skontaktuj się z nami - jesteśmy do Twojej dyspozycji.

tel: 52 384 49 90 email: projekty@tooba.pl
kom: 605 071 505 kom: 502 363 539 kom: 502 363 364