Projekt E-144 (TEC-424) - lustrzane odbicie
Dane ogólne:
CENA:5990 zł
pow. użytkowa: 102,2m²
pow. zabudowy: 194,6 m²
min. wym. działki: 23,11 x 23,01 m
kondygnacje: parterowy
poddasze: bez poddasza
rodzaj zabudowy: wolnostojący
technologia: murowany
styl: nowoczesny
piwnica: nie
garaż: dwustanowiskowy
rodzaj dachu: płaski
pow. dachu: 165 m²
nachylenie dachu:
wysokość domu: 4,7 m
kubatura: 428,5 m³
liczba pokoi: 3
liczba łazienek: 1
kominek: tak
Opis projektu:
Technologia wykonania:

  • Ściany: 25cm ceramika + 18cm styropian.

  • Strop: wylewany żelbetowy.

  • Ocieplenie posadzki na gruncie: 20cm styropian.

  • Ocieplenie dachu: 25-30cm wełna mineralna.

  • Stolarka okienna: drewniana.

  • Wykończenie zewnetrzne: kamień, płytki klinkierowe lub drewno.

  • Ogrzewanie: gazowe.

  • Wentylacja: mechaniczna.

Rzuty:
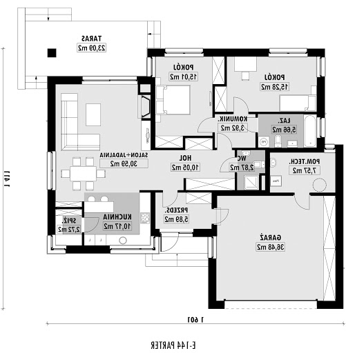
Rzut parteru
E-144 - Rzut parteru
Opis pomieszczeń:
1.Przedsionek - 5.89 m²
2.Hol - 10.05 m²
3.Salon + jadalnia - 30.59 m²
4.Kuchnia - 10.17 m²
5.Spiżarnia - 2.72 m²
6.Komunikacja - 3.92 m²
7.Pokój - 15.01 m²
8.Pokój - 15.28 m²
9.Łazienka - 5.66 m²
10.WC - 2.87 m²
11.Pom. techniczne - 7.57 m²
12.Garaż - 36.48 m²
13.Taras - 23.09 m²
Elewacje:
Elewacja przednia
Elewacja tylna
Elewacja lewa
Elewacja prawa

Potrzebujesz porady...?
Skontaktuj się z nami - jesteśmy do Twojej dyspozycji.

tel: 52 384 49 90 email: projekty@tooba.pl
kom: 605 071 505 kom: 502 363 539 kom: 502 363 364