Projekt EX 16 II G1 (TGY-424)
Dane ogólne:
CENA:6720 zł
pow. użytkowa: 149,23m²
pow. zabudowy: 172,6 m²
min. wym. działki: 23,3 x 24,5 m
kondygnacje: parterowy
poddasze: użytkowe
rodzaj zabudowy: wolnostojący
technologia: murowany
styl: nowoczesny
piwnica: nie
garaż: jednostanowiskowy
rodzaj dachu: dwuspadowy
pow. dachu: 252,1 m²
nachylenie dachu: 45°
wysokość domu: 8,92 m
kubatura: 566,59 m³
liczba pokoi: 4
liczba łazienek: 2
kominek: tak
Opis projektu:

Charakterystyka: dom parterowy z poddaszem użytkowym, niepodpiwniczony
Przeznaczenie: dom dla 3-5-osobowej rodziny
Układ funkcjonalny:
Dla domu z poddaszem użytkowym:
Strefa dzienna – parter: salon z jadalnią i kominkiem oraz kuchnia
Dodatkowo na parterze: spiżarnia, łazienka, gabinet, garderoba, duże pomieszczenie techniczne
Strefa nocna – poddasze: dwie komfortowe sypialnie, duża sypialnia główna wraz z garderobą oraz łazienka
Dodatkowo na poddaszu: garderoba


Budynek zaprojektowano jako wysoko energooszczędny, wyposażony w wentylację mechaniczną z rekuperacją. W projekcie przewidziano również system solarny.

Technologia wykonania:

Fundamenty: ławy, bloczki betonowe 24 cm, ocieplenie styropian 15 cm
Ściany zewnętrzne: murowane, dwuwarstwowe, ceramiczne 24 cm, ocieplenie 20 cm
Ściany wewnętrzne: murowane, ściany nośne 24 cm, ścianki działowe 12 cm
Podłoga na gruncie: płyta betonowa, ocieplenie styropian 15 cm
Strop i stropodach nad garażem: strop międzypiętrowy gęstożebrowy Teriva
Dach: konstrukcja drewniana, ocieplenie wełna mineralna 30 cm, dachówka płaska lub inna o podobnych parametrach
Elewacja: okładzina drewniana i kamienna
Stolarka: drewniana, PCV lub aluminiowa
Okna połaciowe: rozwiązania technologiczne firmy FAKRO

Rzuty:
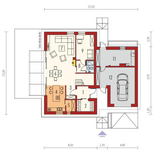
Rzut parteru
EX 16 II G1 - Rzut parteru
Opis pomieszczeń:
1.Wiatrołap - 3.81 m²
2.Garderoba - 4.84 m²
3.Hol z klatką schodową - 13.29 m²
4.Kuchnia - 12.21 m²
5.Spiżarnia - 2.71 m²
6.Jadalnia - 8.96 m²
7.Pokój dzienny - 23.45 m²
8.Korytarz - 3.0 m²
9.Gabinet - 10.93 m²
10.Łazienka - 2.3 m²
11.Kotłownia - 16.13 m²
12.Garaż - 29.93 m²
Rzut poddasza
EX 16 II G1 - Rzut poddasza
Opis pomieszczeń:
1.Korytarz - 7.85 m²
2.Sypialnia - 14.93 m²
3.Garderoba - 3.42 m²
4.Sypialnia - 11.47 m²
5.Sypialnia - 11.42 m²
6.Łazienka - 11.32 m²
7.Garderoba - 3.32 m²
Elewacje:
Elewacja przednia
Elewacja tylna
Elewacja boczna
Elewacja boczna

Potrzebujesz porady...?
Skontaktuj się z nami - jesteśmy do Twojej dyspozycji.

tel: 52 384 49 90 email: projekty@tooba.pl
kom: 605 071 505 kom: 502 363 539 kom: 502 363 364