Projekt E11 ECONOMIC (THY-883)
Dane ogólne:
CENA:3600 zł
pow. użytkowa: 103,56m²
pow. zabudowy: 93,02 m²
min. wym. działki: 21,3 x 19,8 m
kondygnacje: parterowy
poddasze: użytkowe
rodzaj zabudowy: wolnostojący
technologia: murowany
styl: nowoczesny
piwnica: nie
garaż: bez garażu
rodzaj dachu: dwuspadowy
pow. dachu: 120 m²
nachylenie dachu: 45°
wysokość domu: 8,39 m
kubatura: 340,99 m³
liczba pokoi: 3
liczba łazienek: 1
kominek: tak
Opis projektu:

Dom parterowy z poddaszem użytkowym, niepodpiwniczony, przeznaczony dla 4-5 osobowej rodziny. Pięknie przeszklona jadalnia usytuowana w pobliżu kuchni, wydzielony salon z kominkiem oraz mała toaleta tworzą strefę dzienną domu. Znajduje się tu również miejsce na szafy w strefie wejściowej i duże pomieszczenie gospodarcze dostępne ze strefy mieszkalnej i z zewnątrz budynku. Wejście do domu oraz wyjście na taras przy jadalni jest zadaszone. Na poddaszu mieszczą się dwie sypialnie dla dzieci oraz wygodna sypialnia rodziców z garderobą, łazienka i pralnia. Dom E2 ECONOMIC (wersja A) został zaprojektowany w duchu energooszczędności. Zwarta bryła, prosty, dwuspadowy dach oraz optymalnie zaplanowane przeszklenia sprawiają, że budynek jest ekonomiczny w realizacji i późniejszej eksploatacji. Atrakcyjnym elementem domu jest ciekawy podcień, który zdobi elewację, tworząc jednocześnie czarujące połączenie jadalni z ogrodem. Wygodny układ funkcjonalny z czytelnym podziałem na strefy spełni oczekiwania nawet najbardziej wymagających inwestorów. Kolekcja ECONOMIC – domy ładne i tanie w budowie Kolekcja ECONOMIC została zaprojektowana z troską o ekonomiczny charakter budowy. Prosta bryła, ograniczona ilość detali architektonicznych oraz zminimalizowana liczba pionów instalacyjnych sprawia, że domy z Kolekcji ECONOMIC są tanie w realizacji i późniejszej eksploatacji. Atuty Kolekcji ECONOMIC • Prosta konstrukcja domu – niskie koszty budowy • Standardowe wymiary stolarki okiennej – najtańsze rozwiązania profili okiennych • Brak okrągłych okien, rozbudowanych przeszkleń i rolet • Nowoczesna interpretacja klasycznej bryły domu • Optymalny układ funkcjonalny • Idealne proporcje budynku – atrakcyjny efekt estetyczny • Czysta forma bez zbędnych detali Istnieje możliwość: - podpiwniczenia budynku


Technologia wykonania:

Fundamenty: ławy, bloczki betonowe 24 cm, ocieplenie styropian 15 cm
Ściany zewnętrzne: murowane, dwuwarstwowe, pustaki ceramiczne gr. 24 cm, ocieplenie 20 cm
Ściany wewnętrzne: murowane, pustaki ceramiczne, ściany nośne 24 cm, ścianki działowe 12 cm
Podłoga na gruncie: płyta betonowa, ocieplenie styropian 15 cm
Strop: gęstożebrowy Teriva
Dach: konstrukcja drewniana, ocieplenie wełna mineralna 30 cm, dachówka ceramiczna Röben
Elewacja: tynk cienkowarstwowy mineralny i okładzina drewniana
Stolarka: drewniana, PCV lub aluminiowa
Okna połaciowe: rozwiązania technologiczne firmy VELUX

Rzuty:
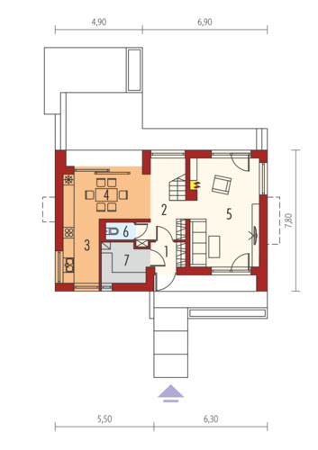
Rzut parteru
E11 ECONOMIC - Rzut parteru
Opis pomieszczeń:
1.Wiatrołap - 2.65 m²
2.Hol + schody - 9.8 m²
3.Kuchnia - 7.11 m²
4.Jadalnia - 11.78 m²
5.Pokój dzienny - 23.17 m²
6.Toaleta - 1.48 m²
7.Kotłownia - 5.39 m²
Rzut poddasza
E11 ECONOMIC - Rzut poddasza
Opis pomieszczeń:
1.Korytarz - 4.32 m²
2.Sypialnia - 9.55 m²
3.Sypialnia - 9.17 m²
4.Sypialnia - 12.23 m²
5.Garderoba - 4.73 m²
6.Łazienka - 5.77 m²
7.Pralnia - 1.78 m²
Elewacje:
Elewacja przednia
Elewacja tylna
Elewacja boczna
Elewacja boczna

Potrzebujesz porady...?
Skontaktuj się z nami - jesteśmy do Twojej dyspozycji.

tel: 52 384 49 90 email: projekty@tooba.pl
kom: 605 071 505 kom: 502 363 539 kom: 502 363 364