Projekt G63 (TFE-496)
Dane ogólne:
  • CENA: 890 zł
  • Pow. użytkowa: 39,93 m²
  • Pow. zabudowy: 47,83 m²
  • Liczba stanowisk: jednostanowiskowy
  • Technologia: murowany
  • Zabudowa: garaż wolnostojący
  • Rodzaj dachu: dwuspadowy
  • Kalenica: równoległa do drogi
  • Nachylenie dachu: 17°
  • Wysokość garażu: 3,67 m
  • Szerokość garażu: 7 m
  • Długość garażu: 7,42 m
  • Kubatura: 166,1 m³
  • Pom. gospodarcze: tak
Opis projektu:

Projekt budynku garażowego wykonany w technologii tradycyjnej przykryty dachem dwuspadowym. Garaż przeznaczony dla samochodów dostawczych. Istnieje możliwość przesunięcia, likwidacji lub dodania okien w ścianach bocznych oraz zmiana funkcji pomieszczeń. W projekcie załączone jest zestawienie stali i stolarki okienno-drzwiowej. 
Wysokość pomieszczenia m
Do projektu dołączamy bezpłatną zgodę na wprowadzenie zmian.

Technologia wykonania:

Budynek wykonany w technologii tradycyjnej.
Ściany murowane z bloczków z betonu komórkowego grubości 24cm.
Brama o wymiarach 2,60x2,30m.
Więźba dachowa dwuspadowa, drewniana, pokryta blachodachówką.

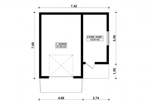
Rzuty:
Rzut garażu
G63 - Rzut garażu
Opis pomieszczeń:
1.garaż - 27.38 m²
2.pom.gosp. - 12.55 m²
Elewacje:
Elewacja przednia
Elewacja tylna
Elewacja lewa
Elewacja prawa

Potrzebujesz porady...?
Skontaktuj się z nami - jesteśmy do Twojej dyspozycji.

tel: 52 384 49 90 email: projekty@tooba.pl
kom: 605 071 505 kom: 502 363 539 kom: 502 363 364