Projekt Gabriela (TKQ-656)
Dane ogólne:
CENA:7920 zł
pow. użytkowa: 328,39m²
pow. zabudowy: 237,03 m²
min. wym. działki: 28,51 x 21,64 m
kondygnacje: piętrowy
poddasze: bez poddasza
rodzaj zabudowy: ekskluzywny
technologia: murowany
styl: tradycyjny
piwnica: tak
garaż: dwustanowiskowy
rodzaj dachu: czterospadowy
pow. dachu: 331,6 m²
nachylenie dachu: 22°
wysokość domu: 9,25 m
kubatura: 1555 m³
liczba pokoi: 6
liczba łazienek: 3
kominek: tak
Opis projektu:

Bardzo prestiżowy dom, o jednopiętrowej bryle przekryty czterospadowym dachem. Dom przeznaczony jest dla 4-6cio osobowej rodziny. Architektura domu nawiązuje do stylu modernistycznego, we współczesnym ujęciu. Elementy jak narożne okna, balkony z zaokrąglonymi balustradami, łukowy wykusz jadalni, podział elewacji na poziome pasy tworzą ciekawą stylistycznie architekturę zewnętrzną budynku. Dla projektu przewidziano kilka różnych wariantów aranżacji elewacji. Wnętrze domu: na parterze przestrzeń dzienna składająca się z salonu, jadalni z pięknym łukowym wykuszem, przestronnego holu z wygodnymi schodami na piętro, obszernej kuchni z aneksem na szybkie posiłki. Z pokoju dziennego wychodzimy do podcienia i na taras. Na parterze zaprojektowano również gabinet, garaż i kotłownię. Na piętrze znajduje się apartament rodziców z łazienką, garderobą i tarasem na ogród; trzy sypialnie dzieci, z łazienką, oraz pralnią i pokój sportowy. Dla domu przewidziano również częściowe podpiwniczenie - piwnica dostępna z zewnątrz domu, schodkami z ogrodu. Z piwnicy można zrezygnować jeśli warunku gruntowe nie pozwalają na jej budowę.

Technologia wykonania:

  • Fundamenty: betonowe wylewane

  • Ściany zewnętrzne: dwuwarstwowe porotherm 25 lub U220 + 15 styropian

  • Strop: żelbetowy monolityczny płytowy

  • Pokrycie dachu: blachodachówka lub dachówka

  • Elewacje: tynk cienkowarstwowy

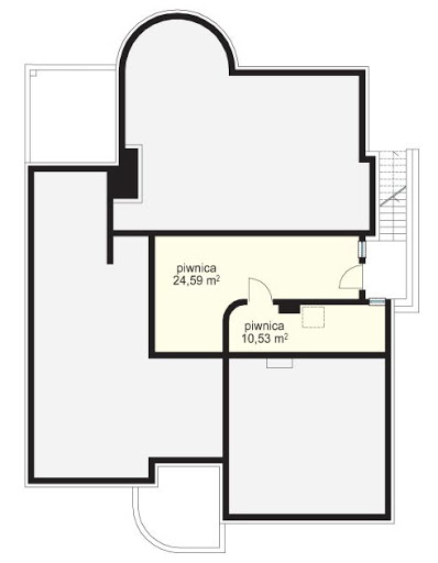
Rzuty:
Rzut piwnicy
Gabriela - Rzut piwnicy
Opis pomieszczeń:
1.piwnica - 24.59 m²
2.piwnica - 10.53 m²
Rzut parteru
Gabriela - Rzut parteru
Opis pomieszczeń:
1.sień - 5.63 m²
2.hall - 32.37 m²
3.kuchnia / aneks śniadaniowy - 22.24 m²
4.spiżarnia - 2.71 m²
5.pokój dzienny + jadalnia - 59.76 m²
6.pokój gościnny/gabinet - 15.33 m²
7.łazienka - 4.15 m²
8.garderoba - 3.92 m²
9.kotłownia - 5.35 m²
10.garaż - 36.0 m²
Rzut piętra
Gabriela - Rzut piętra
Opis pomieszczeń:
1.hol - 21.08 m²
2.sypialnia - 24.76 m²
3.sypialnia - 21.03 m²
4.sypialnia - 17.2 m²
5.sypialnia - 24.61 m²
6.garderoba - 3.69 m²
7.garderoba - 2.36 m²
8.garderoba - 2.36 m²
9.garderoba - 4.32 m²
10.garderoba - 3.35 m²
11.łazienka - 7.44 m²
13.sauna - 2.72 m²
14.siłownia - 13.51 m²
15.pralnia - 8.63 m²
Elewacje:
Elewacje

Potrzebujesz porady...?
Skontaktuj się z nami - jesteśmy do Twojej dyspozycji.

tel: 52 384 49 90 email: projekty@tooba.pl
kom: 605 071 505 kom: 502 363 539 kom: 502 363 364