Projekt AT-G16 (TES-488)
Dane ogólne:
  • CENA: 644 zł
  • Pow. użytkowa: 103,4 m²
  • Pow. zabudowy: 59,9 m²
  • Liczba stanowisk: dwustanowiskowy
  • Technologia: murowany
  • Zabudowa: garaż wolnostojący
  • Rodzaj dachu: dwuspadowy
  • Kalenica: prostopadła do drogi
  • Nachylenie dachu: 30°
  • Wysokość garażu: 5,4 m
  • Szerokość garażu: 7,4 m
  • Długość garażu: 8 m
  • Kubatura: 247,5 m³
  • Poddasze: tak
  • Pom. gospodarcze: tak
Opis projektu:
Technologia wykonania:

Technologia i konstrukcja: murowana – beton komórkowy


Ściany zewnętrzne: beton komórkowy gr.24 cm
Ściany wewnętrzne: beton komórkowy gr.12 cm
Strop: żelbetowy lub drewniany z belek stropowych STEICO Joist (polecamy rozwiązanie alternatywne)
Konstrukcja dachu: drewniana, krokwiowa


Pokrycie dachu: dachówka bitumiczna IKO

Rzuty:
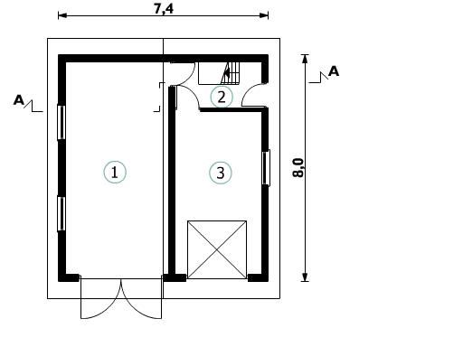
Rzut garażu
AT-G16 - Rzut garażu
Opis pomieszczeń:
1.Garaż - 27.7 m²
2.Pom.gosp. - 4.0 m²
3.Pom.gosp. - 17.8 m²
Rzut poddasza
AT-G16 - Rzut poddasza
Opis pomieszczeń:
1.Strych - 31.0 m²
2.Strych - 7.2 m²
Elewacje:
Elewacja przednia
Elewacja tylna
Elewacja lewa
Elewacja prawa

Potrzebujesz porady...?
Skontaktuj się z nami - jesteśmy do Twojej dyspozycji.

tel: 52 384 49 90 email: projekty@tooba.pl
kom: 605 071 505 kom: 502 363 539 kom: 502 363 364